602 Hampton Springs
Perry, FL MLS: 1147308975

Get More Information

    Source: Capital Area Technology & Realtor® Services
    Listing Broker: The American Dream
    Listing Last Updated: 12-09-2025 01:12
    IDX Listing Data Update Time: 01-08-2026 09:01

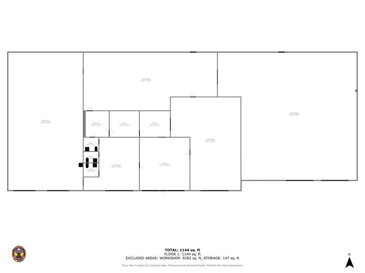
    Property Description:

    Are you a budding entrepreneur who is ready to take on the business world? This full service vehicle service station is just waiting for an enthusiastic new owners to take it to the next level. Yarbrough Tire & Automotive Repair has been a longstanding Perry, Florida staple when it comes to all things automotive repair for 45 years. Now is your chance to own a piece of history and bring it into the 21st century. With all the equipment and employees you need to keep the business thriving and the possibility for expansion with the 2 additional lots (included in the sale) in the rear, this auto services business is set up and ready for new management. With an impressive P&L, and the possibility for owner financing, this is an entrepreneurs dream. Are you ready to take the leap into owning your own business and taking it to the next level? The possibilities are endless and Yarbrough Tire & Automotive Repair has a book of business ready for you! Multiple parcels are included in the purchase as well as the goodwill name of the business 04214-000- LEG 0000.67 ACRES - WEST BROOKLYN SUB - LOTS 24 25 26 27 28 BLK 60 - OR 346-345 04209-000- LEG 0000.13 ACRES - WEST BROOKLYN SUB - LOT 2 BLK 60 - OR 346-345; 04208-000- LEG 0000.13 ACRES - WEST BROOKLYN SUB - LOT 1 BLK 60 - OR 346-345- for a total of .93 acres

    Get More Information

      Christen Geil 352-363-7106 More Info