20817  Marina
Perry, FL MLS: 1139701628
Get More Information
Property Description:
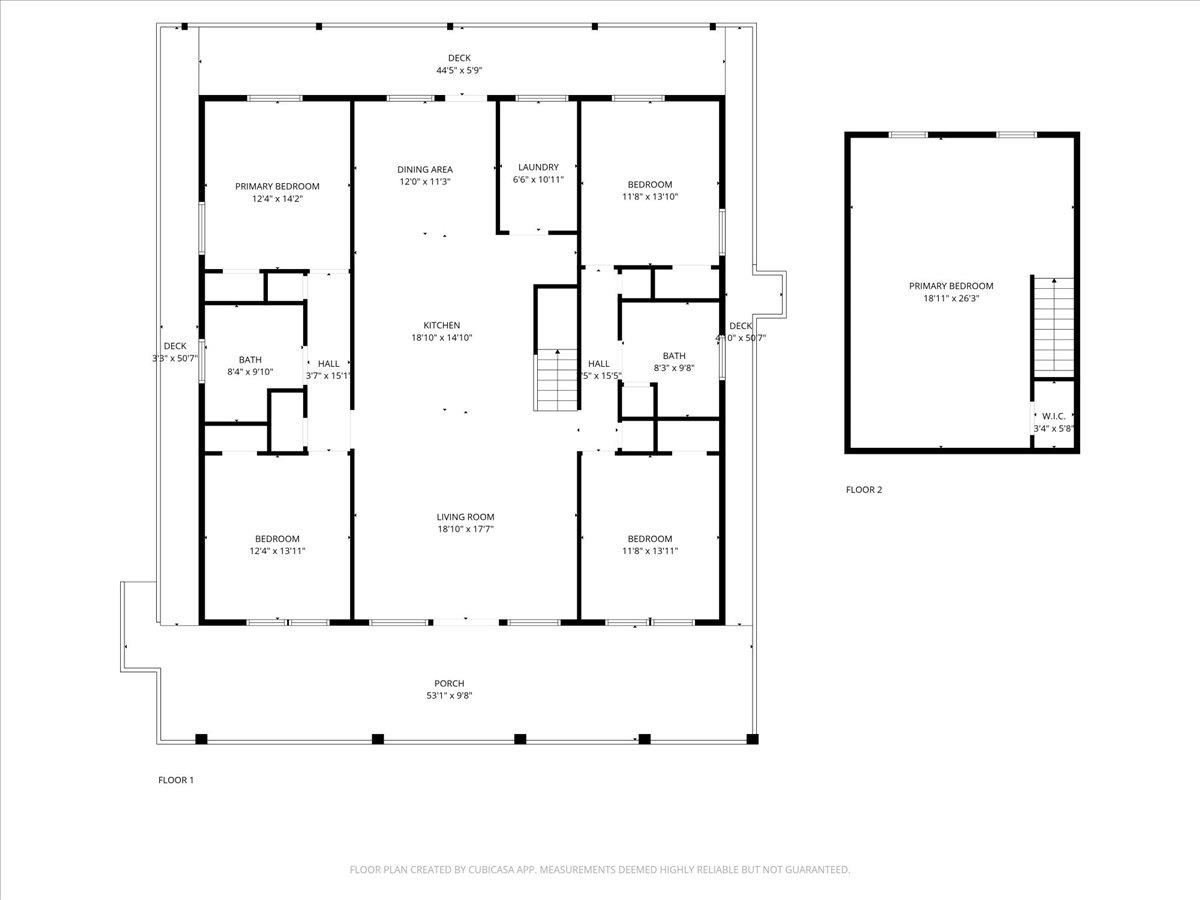
Welcome to 20817 Marina Rd, Keaton Beach, Florida a true coastal masterpiece that perfectly blends luxury, functionality, and Florida charm. Built in 2022, this 5-bedroom, 2-bath home offers 2,672 sq ft of beautifully designed living space and an expansive 7,767 sq ft under-roof footprint, making it one of the most impressive and commanding homes in the entire Keaton Beach area. Situated on a rare 100x100 double lot (.24 acre) with deep-water access, two floating docks, and a sparkling private pool, this property stands as a centerpiece of the community the ultimate coastal showplace with room to expand the dock or add a boathouse for larger vessels. Step inside and youll immediately feel the warmth of thoughtful design paired with upscale finishes. The open-concept living area features vaulted ceilings and an inviting flow ideal for entertaining. The kitchen serves as the heart of the home, boasting high-end custom cabinetry, a sprawling island, wet bar with wine storage, and a spacious dining area that brings everyone together. The split floor plan ensures privacy with four large bedrooms and two custom-tiled bathrooms, while the upstairs bunk suite provides the perfect retreat for kids or guestslarge enough for two king beds, a sitting area, and an oversized walk-in closet. The mezzanine level offers a breezy escape where you can grill, swap fishing stories, and take in the salt air after a day on the water. Below, the under-home area is just as impressive offering endless room for boats, golf carts, vehicles, or gatherings. Entertaining a crowd? No problem here. The main-level deck provides the perfect spot for your morning coffee or an evening sunset cocktail overlooking the canal. This home is built to last, engineered to withstand even the strongest hurricanes while maintaining beauty and craftsmanship in every detail. Whether youre dreaming of your forever beach home, envisioning a high-income-producing Airbnb, or planning a group investment for the ultimate summer getaway, this property checks every box. To make your move seamless, the home can be sold partially furnished upon negotiation, allowing you to start living the Keaton Beach lifestyle immediately. Expansive, elegant, and extraordinary 20817 Marina Rd is more than just a home, its the focal point of Keaton Beach and a testament to the best of North Florida waterfront living.





































































